CERTIFICADOS Y PROYECTOS

Nuestra empresa cuenta con un equipo de técnicos cualificados para el estudio y desarrollo de cualquier proyecto de instalaciones, tanto para su hogar como para su empresa.

 

 

     CERTIFICADOS

 

 

  • Calificación y certificación energética
  • Legalización de instalaciones de fontanería
  • Legalización de instalaciones de electricidad

 

     PROYECTOS

 

 

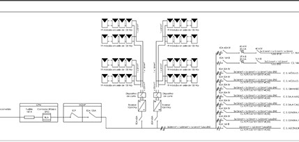
  • Estudios de viabilidad de instalaciones de energía solar
  • Proyecto instalación solar térmica
  • Proyecto instalación solar fotovoltaica
  • Proyecto instalación eléctrica
  • Proyecto instalación de fontanería
  • Estudio necesidades térmicas
  • Proyecto instalaciones de climatización
  • Estudios de Rehabilitación Energética
  • Proyecto de luminotecnia

 

CONTACTO:

Avda. Las Palmeras 85
41661 Algámitas
Sevilla
 
609 61 88 25
fontelec@fontelecinstalaciones.com

EMPRESA COLABORADORA: